Bouwproject: Opwijk
Beschrijving Opwijk
Het project in Lebbeke omvat een eengezinswoning naast de bestaande woning van de opdrachtgever, met gedeelde tuinen. De bedoeling is meerdere compacte zorgwooneenheden te realiseren zonder de milieuvoetafdruk te vergroten. Compact wonen verlaagt bouw- en onderhoudskosten en vermindert het energieverbruik. Er wordt ingezet op hergebruik van bestaande structuren en waardevolle ruimtes. De verdiepingen worden optimaal benut om toekomstige woonscenario’s mogelijk te maken. Comfort staat centraal dankzij integrale en akoestische isolatie en een gezond binnenklimaat. De relatie met de tuin en natuur wordt versterkt door ontharding en vergroening. Zo ontstaat een duurzaam en flexibel woonconcept met aandacht voor levenskwaliteit en ecologie.


Specificaties Opwijk
- ProjectfaseIn uitvoering
- TypologieVan ééngezinswoning naar twee woonunits
- Oppervlakte160 m2
- Bouwbudget excl. BTW€ 220 000 €
- LocatieLebbeke
- BouwmethodeMassiefbouw
Actoren
- Architect
- Studiebureau stabiliteit
- Aannemer (afwerking)
- EPB-verslaggever
- Materialenbank
- BRUG-Figuur
Geraadpleegde actoren
- Materialenbank
- Leverancier
- Onderzoeksinstelling
- Toonzaal
Circulaire ambitie(s) Opwijk
- Het maximaliseren van de hergebruik-kansen van de elementen
- De kansen op recyclage maximaliseren
- Het minimaliseren van de milieu-impact van de materialen
- Het verlengen van de levensduur van de gebouwen
Tijdlijn Opwijk
Ambities
- Het verlengen van de levensduur van de gebouwen
Betrokken actoren
Brugfiguren
Wesmael -De Clerck kloppen aan bij Labland vzw met de vraag voor het plaatsen van een inschuifhuis in Lebbeke.
Vooraleer LabLand vzw een inschuif wilt laten plaatsen wordt er eerst een Scenario Studie opgemaakt. Daarin wordt enerzijds de kwaliteit van de bestaande ruimtes onderzocht en nagegaan of de woning effectief zodanig bouwvallig is dat ze gesloopt moet worden voor het plaatsen van een inschuifhuis. Anderzijds worden de mogelijkheden tot renovatie en herbestemming in overweging genomen vertrekkende vanuit de het potentieel van de bestaande ruimtes, de noden van de eigenaar, buurtbewoners en toekomstige scenario's.
Ambities
- Het verlengen van de levensduur van de gebouwen
Betrokken actoren
Gebruikte hulpmiddelen
Brugfiguren
Wat is de circulaire ambitie?
Circulair bouwen begint bij het ontwerp. Hoe kan de levensduur van een gebouw worden verlengd? Aan de hand van een scenariostudie onderzoekt Labland de verschillende mogelijkheden voor de woning binnen de specifieke buurtcontext.
Welke opties zijn hoe (met welk instrument) overwogen en onderzocht?
Door verder te kijken dan de oorspronkelijke vraag en factoren als stedenbouw, erfgoed, klimaat, regelgeving en buurtcontext te integreren, verkent het onderzoek out-of-the-box oplossingen. Elk scenario — van kleinere ingrepen tot grotere transformaties — maakt de gevolgen voor energie, ruimtekwaliteit, kost en milieu zichtbaar:
Optie 1:
Scenario 1A: Studio's met kleinste ingreep €
Kotsenindicatie: €
+ Compact ontwerp met een maximaal behoud van de structuur en maximale tuinruimte. Gelijke indeling van studio’s voor efficiënte leidingen. Flexibel plan dat kan worden omgevormd tot een eengezinswoning met twee slaapkamers door keuken en leefruimte te herschikken.
- Compacte slaap- en badruimtes met beperkte buitenruimtes (enkel terrassen) en leefruimtes die niet aan de tuinkant liggen.
Optie 2:
Scenario 1B: Studio's met buitentrap
Kotsenindicatie: €
+Compact en flexibel ontwerp met maximaal behoud van de bestaande structuur, efficiënte studio-indeling en buiten geplaatste trap voor extra ruimte; combineert maximale tuin met de mogelijkheid tot omvorming tot een ééngezinswoning met twee slaapkamers.
-Toegang via de garage en minder comfort door de buitentrap bij slecht weer.
Optie 3:
Scenario 1C: duplex langs de straatkant en duplex langs de tuinkan
Kostenindicatie: €€
+ Compact en efficiënt ontwerp met maximale tuinruimte, gespiegelde studio’s en duidelijk onderscheid tussen dag- en nachtgedeelte; biedt ruime kamers en uitbreidingsmogelijkheid met een gedeeld dakterras.
- Minder geschikt voor omzetting naar ééngezinswoning door gesplitste trappen; straatgerichte woning heeft beperkt tuinzicht en weinig aangrenzende buitenruimte.
Optie 4:
Scenario 2A: Studio's met uitbreiding
Kostenindicatie: €€€
+ Ontwerp met maximale tuin, een grotere en een kleinere unit (met terras en mogelijk dakterras), eenvoudig om te vormen tot ééngezinswoning dankzij behoud van trappen.
- Beperkte buitenruimte bij de onderste unit en minder compact volume.
Optie 5:
Scenario 2B: Studio met uitbreiding en duplex
Kostenindicatie: €€€€
+ Ontwerp met maximale tuin, een grotere unit en een duplex met terras, ruime kamers en keuken, eenvoudig om te vormen tot ééngezinswoning dankzij behoud van trappen.
- Mogelijk te weinig garageruimte voor alle bewoners en funderingen/stabiliteit moeten worden onderzocht voor een extra verdieping.
Optie 6:
Scenario 3A: Duplex en studio
Kostenindicatie: €€€€€
+ Ontwerp met een grote tuingerichte unit, een kleinere studio met terras, behoud van trappen voor eenvoudige omzetting tot ééngezinswoning en optie voor dakterras bovenste unit.
- Grotere footprint en minder compacte indeling, met beperkt aantal parkeerplaatsen door smalle garagebreedte.
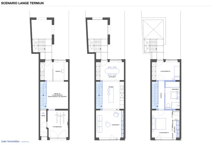
Welke beslissing werd uiteindelijk gekozen en waarom?
Optie 2:
Scenario 1B: Studio's met buitentrap
Kotsenindicatie: €
Het bouwteam kiest voor de meest compacte oplossing: renoveren zonder uitbreiding, met grote planflexibiliteit en gemiddelde bouwkosten. Kort na de beslissing wordt het bouwteam uitgebreid door de aanstelling van architect Lieke Verschelden.
Hoe is deze beslissing uitgevoerd en eventueel bijgestuurd?
Tijdens de co-creatiesessies van het Circulair Advies en Pakket Opbouw van Labland werden de veranderingsgerichte ontwerpambities bewaakt. Door het trappengat demonteerbaar te dichten, het vaste meubilair te spiegelen en de circulatie aan te passen, blijft het mogelijk om de twee studio’s in de toekomst weer samen te voegen tot één eengezinswoning. De architect past het uitvoeringsdossier hierop aan.








Ambities
- Het maximaliseren van de hergebruik-kansen van de elementen
Betrokken actoren
Brugfiguren
Labland vzw maakt een inventaris van de aanwezige bouwmaterialen en brengt hun hergebruikpotentieel in kaart.
Het hergebruiken van bouwproducten is een doeltreffende manier om de milieu-impact van gebouwen aanzienlijk te verkleinen. Door bouwelementen in omloop te houden en opnieuw in te zetten, wordt bovendien de hoeveelheid bouw- en sloopafval beperkt.
Labland stelt een beknopt overzicht op van de materialen die zich lenen tot hoogwaardig hergebruik, met informatie over hoeveelheden, afmetingen, toestand en bevestigingsmethode. Deze checklist dient nadien als praktisch ontwerp- en demontage-instrument.
Zo draagt Labland eraan bij dat meer bouwmaterialen en -producten effectief een tweede leven krijgen binnen het project.

















Ambities
- Het verlengen van de levensduur van de gebouwen
Betrokken actoren
Brugfiguren
De informatie uit het samenvattende verslag wordt door de Architect verwerkt in de bouwaanvraag en online ingediend via het digitale omgevingsloket.



Ambities
- Het verlengen van de levensduur van de gebouwen
- Het minimaliseren van de hoeveelheid van de materialen
- De kansen op recyclage maximaliseren
- Het maximaliseren van de hergebruik-kansen van de elementen
- Het minimaliseren van de milieu-impact van de materialen
Betrokken actoren
Gebruikte hulpmiddelen
Brugfiguren
Begeleiding van het bouwteam bij de keuze van de meest geschikte bouwmethode en de te hergebruiken materialen.
Naast het volume en de planorganisatie van de woning, heeft ook de keuze van de bouwmethode en materialen niet te onderschatten invloed op de duurzaamheid van een bouwproject. LabLand organiseert 2 cocreatiesessies waarin verschillende bouwmethodes tov elkaar worden afgewogen en wordt gezocht naar manieren om zoveel mogelijk hergebruikmaterialen in het nieuwe project te integreren.
Sessies:
2 Cocreatiesessies
Ambities
- Het maximaliseren van de hergebruik-kansen van de elementen
- Het minimaliseren van de hoeveelheid van de materialen
- Het minimaliseren van de milieu-impact van de materialen
- De kansen op recyclage maximaliseren
- Het verlengen van de levensduur van de gebouwen
Betrokken actoren
Gebruikte hulpmiddelen
Brugfiguren
Begeleiding bij de keuze van de meest geschikte wand-, vloer- of dakpakketten.
Ook de keuze van de wand-, vloer- en dakpakketten heeft een grote invloed op de circulariteit van uw project. In een reeks cocreatiesessies verkennen we verschillende varianten. We wegen bij de keuze van elk pakket de volgende zaken af: de vooraf bepaalde circulaire ambities, de milieu-impact (adhv de TOTEM-tool), het bouwbudget, bouwtechnische performantie en esthetiek.
Sessies:
2 Cocreatiesessies
Output:
Samenvattend verslag pakketopbouwen met indicatieve kostenraming
Ambities
- Het maximaliseren van de hergebruik-kansen van de elementen
- Het minimaliseren van de hoeveelheid van de materialen
Betrokken actoren
Gebruikte hulpmiddelen
Brugfiguren
Wat is de circulaire ambitie?
De circulaire ambitie is om een dakpakket samen te stellen met een zo laag mogelijke milieu-impact daarvoor onderzoeken welke materialen we kunnen hergebruiken en hoe dat we deze demonteerbaar kunnen plaatsen.
Welke opties zijn hoe (met welk instrument) overwogen en onderzocht?
Vanuit het pakketopbouwadvies stelt Labland de volgende methode voor: het samenbrengen van de betrokken bouwactoren in verschillende co-creatiesessies om de bouwpakketten te onderzoeken & ontwerpen op basis van vooraf vastgelegde parameters, namelijk de circulaire ambities, de milieu-impact (bepaald met de TOTEM-tool), het bouwbudget, de bouwtechnische prestaties en de esthetiek.
Het dak moet opnieuw geïsoleerd worden, wat zijn de mogelijkheden binnen de vooraf vastgelegde parameters?
Optie 1:
Ex-situ hergebruikte Rotswol platen + balast
-Dikte: 45 cm
-Milieuscore: 7,6 mPt/FE
-Materiaalprijs: 96,96 €/m2
-Circulaire ambitie: Ex-situ hergebruik van materiaal.
Voor een gelijkaardig onderzoek in het brug-bouwproject Bastion VIII liet de materialen bank Atelier Circulair Leuven weten dat ze een lot van 300 m2 rotswol Isolatie hadden liggen dat nog niet op hun online shop was geregistreerd. Het technisch fiche wordt meegedeeld met het bouwteam en goedgekeurd door de EPB verslaggever. De materialen bank Atelier Circulair Leuven laat een test afleggen door Buildwise om de effectieve isolatie waardes te achterhalen. De test van Buildwise wijzen uit dat de isolatie waarde dezelfde is als dat van het Technisch Fiche van de producent.
Optie 2:
Ex-situ hergebruikte PUR platen + ballast
-Dikte: 37 cm
-Milieuscore: 11 mPt/FE
-Materiaalprijs: 88,96 €/m2
-Circulaire ambitie: Ex-situ hergebruik van materiaal.
Tijdens het onderzoeken naar de verschillende pakket opbouwen beschikte materialen bank TROVO Gent een lot PIR/PUR platen afkomstig van een groot dak van een magazijn in Destelbergen.
Voor beide opties onderzoeken we hoe zowel het dampscherm als het waterscherm demonteerbaar kunnen plaatsen. Hiervoor de Technische dienst van SealEco NV gecontacteerd. Door de antikleeffolie onderaan de AluShell 0,4 kan deze los geplaatst worden mits correcte luchtdichte aansluiting aan de dakopstanden en direct ballast. Ook het waterscherm kan met voldoende kimfixatie en direct balast worden geplaatst. De algemene regel is dat de ballastlaag minimaal 60 kg/m2 moet zijn. Dit komt overeen met 4 cm ballast met gewicht van 1600 kg/m3.
De combinatie van een groendak met een losliggende dampscherm, isolatieplaten en waterscherm lijkt niet courant voorkomend. Voor een extensief type groendak is het droog gewicht 38-50 kg/m3 hiervoor zou er extra ballast voor nodig zijn om te voldoen aan de minimale ballastlaag. Voor een intensief type groendak varieert dit rond 100 kg/m3.
Welke beslissing werd uiteindelijk gekozen en waarom?
Het bouwteam kiest voor het hergebruik van de rotswol platen doordat deze voldoen aan de technische eisen, budgetair gunstig en een minimale impact hebben op het milieu. Daarbij is het lot PUR platen reeds verkocht voordat de beslissing is genomen. Het bestaande epdm van het dak wordt verwijderd, de bestaande helling wordt behouden, het nieuw dampscherm wordt met kimfixatie los geplaatst samen met rotswol isolatie platen, het losliggend waterscherm en het ballast in vorm van ronde keien. Architect Lieke Verschelden tekent het uitvoeringsdetail van het dak uit.
Geen groendak wegens extra kosten, hoeveelheid extra materiaal zoals regenwater filtersen voor regenwater hergebruik en geen zichtbaarheid.
Hoe is deze beslissing uitgevoerd en eventueel bijgestuurd?
De rotswol isolatieplaten zijn besteld en staan reeds gestockeerd op de werf. In december 2025 staan de dakwerken gepland.








Ambities
- Het maximaliseren van de hergebruik-kansen van de elementen
- Het minimaliseren van de milieu-impact van de materialen
Betrokken actoren
Gebruikte hulpmiddelen
Brugfiguren
Wat is de circulaire ambitie?
De circulaire ambitie is om materialen maximaal te hergebruiken en, waar nieuwe materialen nodig zijn, te kiezen voor materialen met een zo laag mogelijke milieu-impact.
Welke opties zijn hoe (met welk instrument) overwogen en onderzocht?
Vanuit het pakketopbouwadvies stelt Labland de volgende methode voor: het samenbrengen van de betrokken bouwactoren in verschillende co-creatiesessies om de bouwpakketten te onderzoeken & ontwerpen op basis van vooraf vastgelegde parameters, namelijk de circulaire ambities, de milieu-impact (bepaald met de TOTEM-tool), het bouwbudget, de bouwtechnische prestaties en de esthetiek.
De bestaande vloerafwerking wordt waar mogelijk behouden. In de nieuwe keuken en ingang wordt de huidige vloerafwerking vervangen door natuursteen die afkomstig is van de bekleding van de trap. De twee woonunits moeten onderling voldoende akoestisch worden geïsoleerd. Als afwerking wordt er gekozen voor een leemlaag. Deze pakket opbouw biedt ons twee opties:
OPTIE 1:
Leemafwerking op rieten matten, met geklemde houtwolisolatie tussen het houten regelwerk, onder de bestaande vloeropbouw.
-Dikte: 31 cm
-Milieuscore: 3.4 mPt/FE
-Materiaalprijs: 81,2 €/m2
-Circulaire ambitie: Bio-ecologisch en nagroeibaar.
OPTIE 2:
Leem finish op combinatie van gipsvezel-cellulose panelen met geklemde houtwolisolatie tussen houten regelwerk, onder bestaande vloeropbouw.
-Dikte: 31 cm
-Milieuscore: 3.5 mPt/FE
-Materiaalprijs: 96,2 €/m2
-Circulaire ambitie: Hanteerbare bouwelementen.
Welke beslissing werd uiteindelijk gekozen en waarom?
Optie 2 krijgt de voorkeur. In Den Biotoop in Sint-Niklaas toont aannemer Eco&Zo aan de hand van mock-up's de montage en werking van de combinatie van gipsvezel-cellulose panelen als akoestische isolatie en brandweerstand. Met een leem-finish laag worden deze panelen eenvoudig afgewerkt. Dit maakt optie 2 minder arbeidsintensief dan optie 1 en bespaart arbeidskosten.
Hoe is deze beslissing uitgevoerd en eventueel bijgestuurd?
Deze werken staan gepland voor in 2026.



Ambities
- Het maximaliseren van de hergebruik-kansen van de elementen
- Het minimaliseren van de milieu-impact van de materialen
Betrokken actoren
Gebruikte hulpmiddelen
Brugfiguren
Wat is de circulaire ambitie?
De bestaande gelijkvloers van de garage loopt hellend en wordt deel van het verwarmd volume. Hiervoor dient deze te worden geïsoleerd. De circulaire ambitie is om het vloeropbouw zonder betonnen plaat met zo een laag mogelijke milieu impact van de materialen. Daarnaast bestaat de wens om het bouwafval van de afbraakwerken te hergebruiken.
Welke opties zijn hoe (met welk instrument) overwogen en onderzocht?
Vanuit het pakketopbouwadvies stelt Labland de volgende methode voor: het samenbrengen van de betrokken bouwactoren in verschillende co-creatiesessies om de bouwpakketten te onderzoeken & ontwerpen op basis van vooraf vastgelegde parameters, namelijk de circulaire ambities, de milieu-impact (bepaald met de TOTEM-tool), het bouwbudget, de bouwtechnische prestaties en de esthetiek.
Optie 1:
Vloeropbouw met schelpen en kurkplaten onder kalkchape met terrazzo uit gerecycleerde granulaten als afwerkingslaag.
-Dikte: 53,2 cm
-Milieuscore: 12,16 mPt/FE
-Materiaalprijs: 425,4 €/m2
-U-waarde: 0,15 W/m2K
-Circulaire ambitie: De hoeveelheid materialen minimaliseren.
Volgens Isoschelp dienen de kurkplaten als vochtresistente en dampopen panelen als ondersteuning voor de kalkchape. Deze zorgen bijkomend voor de extra isolatie waarde nodig voor het halen van een U-waarde van 0,15 W/m2K. Het voordeel van schelpen is dat ze ervoor zorgen dat capillair vocht niet kan doordringen in de vloerafwerking. Op een kletsnatte bodem kan je perfect schelpen leggen. De onderste 10 cm zullen dan wellicht nog in enige mate nat worden, maar de schelpen hierboven blijven volledig droog door het drainerende effect. Het is pas vanaf deze hoogte dat een isolerende werking wordt geteld.
Optie 2:
Vloeropbouw met schelpen en kalkhennepbeton onder kalkchape met terrazzo uit gerecycleerde granulaten als afwerkingslaag.
-Dikte: 62,2 cm
-Milieuscore: 10,25 mPt/FE
-Materiaalprijs: 463 €/m2
-U-waarde: 0,15 W/m2K
-Circulaire ambitie: De hoeveelheid materialen minimaliseren.
Kalkhennepbeton is volgens Ecomat een mogelijke alternatief voor het ondersteunen voor de kalkchape door zijn vochtregulerende eigenschap. De dikte van de kalkhennepbeton is bijna tweemaal de dikte van de kurkplaten voor het behalen van dezelfde U waarde van 0,15 W/m2K.
Optie 3:
Vloeropbouw met glasschuimgranulaten en kalkchape met terrazzo uit gerecycleerde granulaten als afwerkingslaag.
-Dikte: 62 cm
-Milieuscore: 8,87 mPt/FE
-Materiaalprijs: 386 €/m2
-U-waarde: 0,15 W/m2K
-Circulaire ambitie: De hoeveelheid materialen minimaliseren.
Net als schelpen werken glasschuimgranulaten isolerend, vochtresisterend en capaillair onderbrekend. De opbouw is gebaseerd op de bundel van Ecomat over de werking van glasschuimgranulaten van Misapor.
Optie 4:
Vloeropbouw met schelpen onder houtenroostering gevuld met kurkkorrles met osb platen, vlas deken en parket als afwerking.
-Dikte: 63,75 cm
-Milieuscore: 8,13 mPt/FE
-Materiaalprijs: 175 €/m2 (zonder plaatsing kosten)
-U-waarde: 0,15 W/m2K
-Circulaire ambitie: De hoeveelheid materialen minimaliseren.
Welke beslissing werd uiteindelijk gekozen en waarom?
Optie 1 krijgt de voorkeur doordat ook voor de pakket opbouw van de zijgevels kurkplaten worden verkozen als isolerend afwerking materiaal. Zo beperken we de hoeveelheid aan verschillende materialen als ook de kostprijs door in groot aantal aan te kopen. Uit de vloeropbouw van het BRUG bouwproject Greenhouse leren we het volgende alternatief: Kurkkorrels van Recycork in combinatie met honinggraden als aanvullende isolatielaag.
Opvallend is dat de scores in Totem voor de meer bio-afbreekbare materialen telkens lager liggen dan van het nieuw gerecycleerde materiaal. Dit komt doordat niet alle materialen in de Totem staan geregistreerd. De niet geregistreerde materialen simuleren we door de technische eigenschappen aan te passen in gelijksoortige materialen. In het rood toegevoegd aan het Totem details. Het vergelijken van de verschillende opbouwen door middel van de milieuscore geeft hier een verkeken beeld.
Eerst moeten de afbraakwerken klaar zijn om de funderingen op te meten. Dit is essentieel om te bepalen of de dikte van opties de bestaande diepte niet overschrijdt.
Hoe is deze beslissing uitgevoerd en eventueel bijgestuurd?
De afbraakwerken zijn nog niet uitgevoerd.




OPTIE 1:
- Gerecupereerd gevelmetselwerk met luchtspouw, houtvezelplaat, dragend snelbouwsteen en leem afwerking.
- Dikte: 56,8 cm
- Milieuscore: 9.55 mPt/FE
- Materiaalprijs: 180,32 €/m2
- Circulaire ambitie: In-situ hergebruik van materialen.
OPTIE 2:
- Kurkplaten, houtvezelplaten, ingeklemd houtwol in houtskelet, bestaande dragensnelbouwsteen en leem afwerking.
- Dikte: 38 cm
- Milieuscore: 9.03 mPt/FE
- Materiaalprijs: 121,51 €/m2
- Circulaire ambitie: De hoeveelheid materialen minimaliseren.




